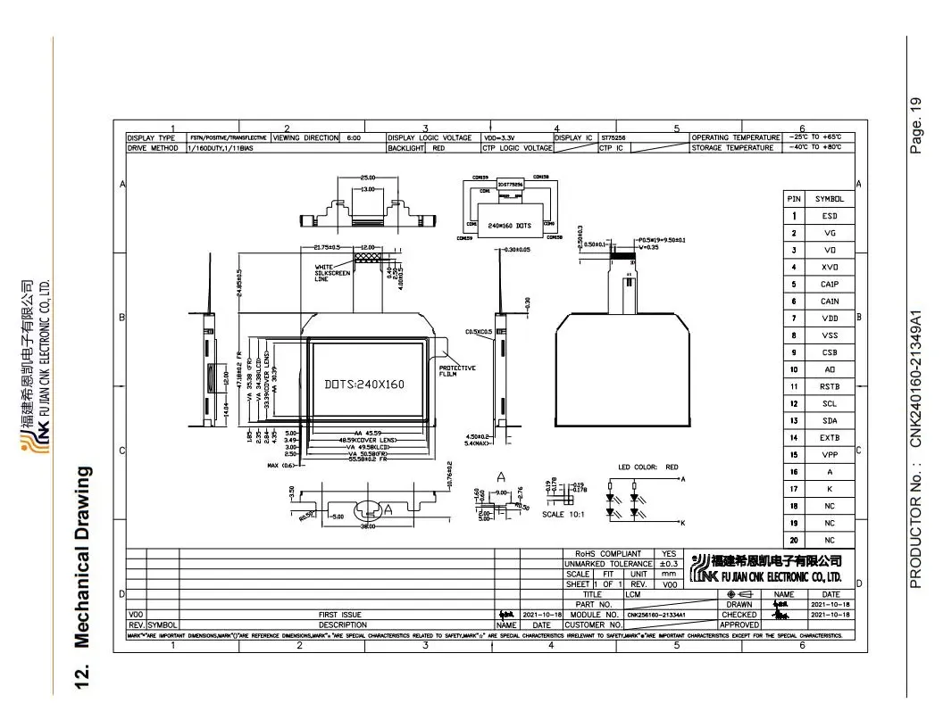
| உருப்படி | விவரக்குறிப்பு |
| தொகுதி அளவு | 55.58 (w) x47.18 (ம) x5.4 (t) மிமீ |
| காட்சி பார்வை பகுதி (லென்ஸ்) | 48.59 (W) x33.39 (ம) மிமீ |
| காட்சி பார்வை பகுதி (எல்.சி.டி) |
49.58 (W) x34.38 (ம) மிமீ |
| காட்சி முறை |
FSTN நேர்மறை பரிமாற்றம் |
| ஐ.சி. |
6 மணி |
| இயக்கி ஐசி |
ST75256 (அல்லது இணக்கமானது) |
| பின்னொளி |
எல்.ஈ.டி/சிவப்பு |
| எடை | TBD |


